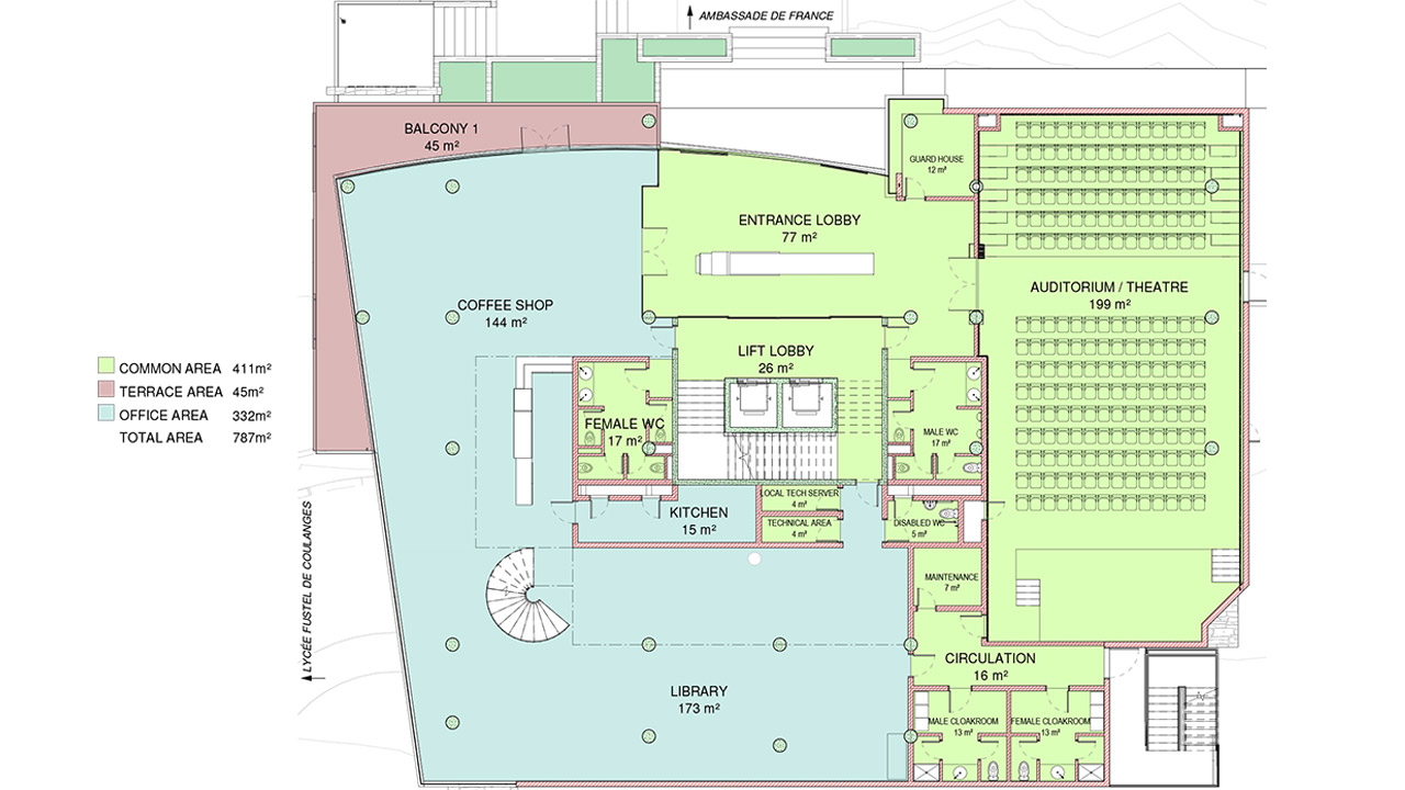
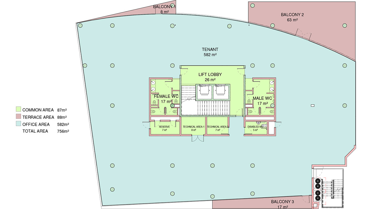
SCI Lordland :: Capital Hill - High Standing Office Building

4661m2 + 40 PARKING BAYS / 2BMT + RDC + 4 OFFICE FLOORS + ROOF TERRACE

Opposite the French Embassy, Plateau Atemengue, Yaounde - Cameroon

visit the site, as if you were there